
近年來越來越多的餐館開在了居民樓附近,而隨著社會各界對環保意識的提高,國家對于廚房油煙排放規定也越來越嚴格,如果沒有按照規定安裝油煙凈(jing)化器(qi),很有可能會面臨著罰款甚至停業整頓的懲罰。餐館油煙太大主要原因就是排煙不暢以及油煙凈化器的凈化效率太低引起的,所以選擇一個好的油煙凈化器以及一個合理的油煙凈化系統工程成為了重中之重。下面北京油煙凈化器廠家介紹常見的3種油煙凈化系統排放方案:
1、一對一油煙系統
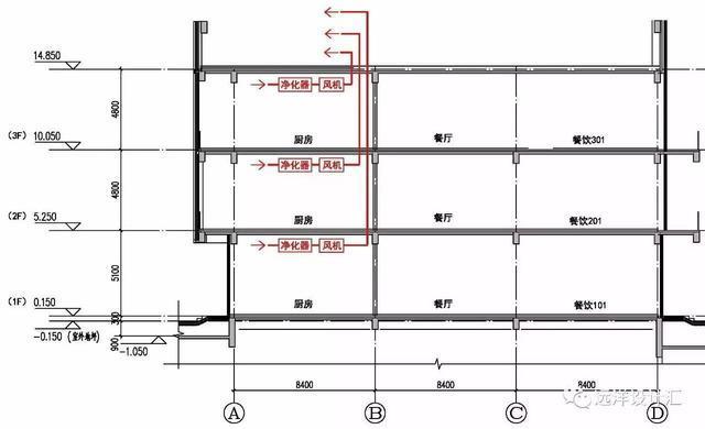
每家餐館都使用獨立的油煙凈化排放系統,每個餐館使用不同的油煙風管、油煙風機以及油煙凈化器,油煙風機可以設置在廚房吊頂,也有的設置在屋面。
2、多對一散風機油煙系統
多家餐館工用一套油煙凈化排放系統,就是多家共用同一個油煙凈化排放風管,但是每家餐館都是使用獨立的風機以及油煙凈化器,油煙風機和油煙凈化器一般都可安裝在廚房的吊頂上面。
3、多對一集中風機油煙凈化系統
多家餐飲店共用一套油煙系統,各個用戶之間工用油煙風管、油煙風機、各用戶不工用油煙凈化器(油煙凈化器各戶獨立設置)。油煙風機一般可設置在屋面。
油煙風機為多個用戶所共用,只有一家或者是少數若干家餐飲單元需要排油煙時,油煙風機只能滿載運行而不能按需運行,致使油煙風機電耗造成很大浪費。風機電耗只能按照餐飲面積(或者是各餐飲用戶的油煙風量)來分攤,不能準確分攤到各個用戶的用電量(因無法計量各用戶的開機時間),造成物業公司收費困難。
為了解決無法計算用電量這一難題可引入電量分攤系統,電量分攤系統可對各個用戶的油煙風量及運行時間進行計量,并準確計算出各家用戶的分攤電量,可解決物業收費難的問題。采用電量分攤系統時油煙風機可根據實際需求的風量變頻運行,可有效降低風機的電耗。
